Moje prvotina. Začínám!
Moderátor: Tulda
-
petr1970
- Příspěvky: 35
- Registrován: 20.led 2013 18:46
- Jméno a příjmení: Petr Růžička
- Poděkoval: 1 krát
Moje prvotina. Začínám!
Začal jsem s modelařením čs. opevnění. Hodně zde na fóru čtu vaše příspěvky a kochám se dokonalými modely. Zvláštní obdiv patří těm co tvoří modely z nestavebnic. Uveřejňuji zde fota mého prvního modelu. Je to LO vz.1937, typ A-160 N. Model je kopií objektu č. 16, stavebního úseku C-10, I. sboru. Objekt je situován v Roudnici nad Labem a je zrekonstruován jako muzeum. Model je vyhotoven z polystyrenu. Povrch jsem vytvořil z lepidla na obklady, omítka je z jemného křemičitého písku. Střílny jsou lepeny z polystyrenových L profilů, stejně tak mřížové dveře. Terénní úpravy jsou vyhotoveny z PUR pěny a tmeleno lepidlem na obklady. Povrch zasypán travním posypem pro železniční modeláře. Podotýkám, že je to můj první model, tak buďte při kritice shovívaví. Díky.
-
petr1970
- Příspěvky: 35
- Registrován: 20.led 2013 18:46
- Jméno a příjmení: Petr Růžička
- Poděkoval: 1 krát
RadekMasa píše:Jen dotaz, ten písek jsi měl v různých barvách a sypal jsi to do herkulesu ?
Jinak si myslím, že je to povedený model, kamufláž se mi moc líbí.
Písek jsem koupil v potřebách pro akvaristy. Vybral jsem ten nejjemnější. Model jsem natřel naředěným Herkulesem a zaprášil jsem ho nebarveným křemičitým pískem. Po zaschnutí jsem model vybarvil barvami Humbrol. Použil jsem starší štětec a techniku tupování.
-
petr1970
- Příspěvky: 35
- Registrován: 20.led 2013 18:46
- Jméno a příjmení: Petr Růžička
- Poděkoval: 1 krát
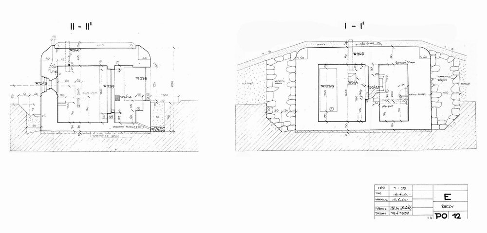
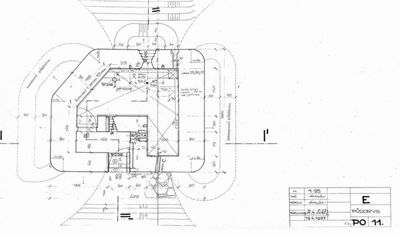
Začínám připravovat stavbu modelu LO vz.37 v měřítku 1:35. Jde o typ E. A budu stavět zachovalý a rekonstruovaný objekt z Berouna. Jde konkrétně o B6/51/E. Přikládám plánky jež jsem našel na netu a použiji je pro modeláž objektu. Držte mi palce!!!
-
petr1970
- Příspěvky: 35
- Registrován: 20.led 2013 18:46
- Jméno a příjmení: Petr Růžička
- Poděkoval: 1 krát
petr1970 píše:Začínám připravovat stavbu modelu LO vz.37 v měřítku 1:35. Jde o typ E. A budu stavět zachovalý a rekonstruovaný objekt z Berouna. Jde konkrétně o B6/51/E. Přikládám plánky jež jsem našel na netu a použiji je pro modeláž objektu. Držte mi palce!!!
A hotovo!!!
-
petr1970
- Příspěvky: 35
- Registrován: 20.led 2013 18:46
- Jméno a příjmení: Petr Růžička
- Poděkoval: 1 krát
Další příspěvek do mé sbírky modelů. Jde objekt LO vz.37 v měřítku 1:35. Je to typ I/E-22/17/D1. Objekt je zachovalý z vnějšku opravený avšak uzavřený. Leží v údolí řeky Mže nedaleko Stříbra. Je vybaven malou protizáplavovou šachtou.
-
petr1970
- Příspěvky: 35
- Registrován: 20.led 2013 18:46
- Jméno a příjmení: Petr Růžička
- Poděkoval: 1 krát
Dobrý den! Přikládám fota mého nového modelu LO vz.37. Je to ze IV.sboru, úseku Červený Potok (Králicko). Číslo objektu je XXXVI/30/A-140 Z. Je to ten atypický objekt co má pravou stěnu se střílnou zesílenou na lehký objekt extrémních 125 cm!!! Jinak model je opět v měřítku 1:35. Doufám, že stojí alespoň za pohled. Všem bunkrákům zdar!!!
-
petr1970
- Příspěvky: 35
- Registrován: 20.led 2013 18:46
- Jméno a příjmení: Petr Růžička
- Poděkoval: 1 krát
Zdravím všechny pevnostní modeláře. Po delší době se mi podařilo dokončit další objekt lehkého opevnění. Jde o dochovaný řopík II.armádního sboru, stavebního úseku F2, číslo 64, typ D2. Opět je to model v měřítku 1:35.
- Přílohy
-
petr1970
- Příspěvky: 35
- Registrován: 20.led 2013 18:46
- Jméno a příjmení: Petr Růžička
- Poděkoval: 1 krát
Dobrý den, modeláři! Přidávám k dobru model dalšího A-160 v měřítku 1:35. Předlohou mu je dochovaný "řopík" I.sboru, stavebního úseku č.186. Je to číslo 162/A-160 v prostoru Starého Města p/Landštejnem. Zajímavostí jsou zeslabené střílny a dochovaný škrabák na obuv.
- Přílohy
Zpět na „Modely opevnění (novinky, rady, otázky aj.)“
Kdo je online
Uživatelé prohlížející si toto fórum: Žádní registrovaní uživatelé a 23 hostů

, kamufláž se mi moc líbí.
